Ignite Collection
Wellington Rambler
FEATURES
01
Expansive Great Room
Our expansive Great Rooms are meticulously designed to serve as the heart of your home.
02
Main Floor Flex Room
Our Main Floor Flex Room epitomizes versatile living, serving as a creative space for work, play, or relaxation.
03
Large Primary Suite
Our Large Primary Suites are thoughtfully designed to offer a sanctuary of luxury and comfort.
04
Functional Spaces
We specialize in creating functional spaces that elevate everyday living.
Download This Floorplan
Modify this Floorplan
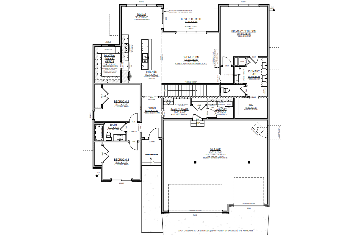
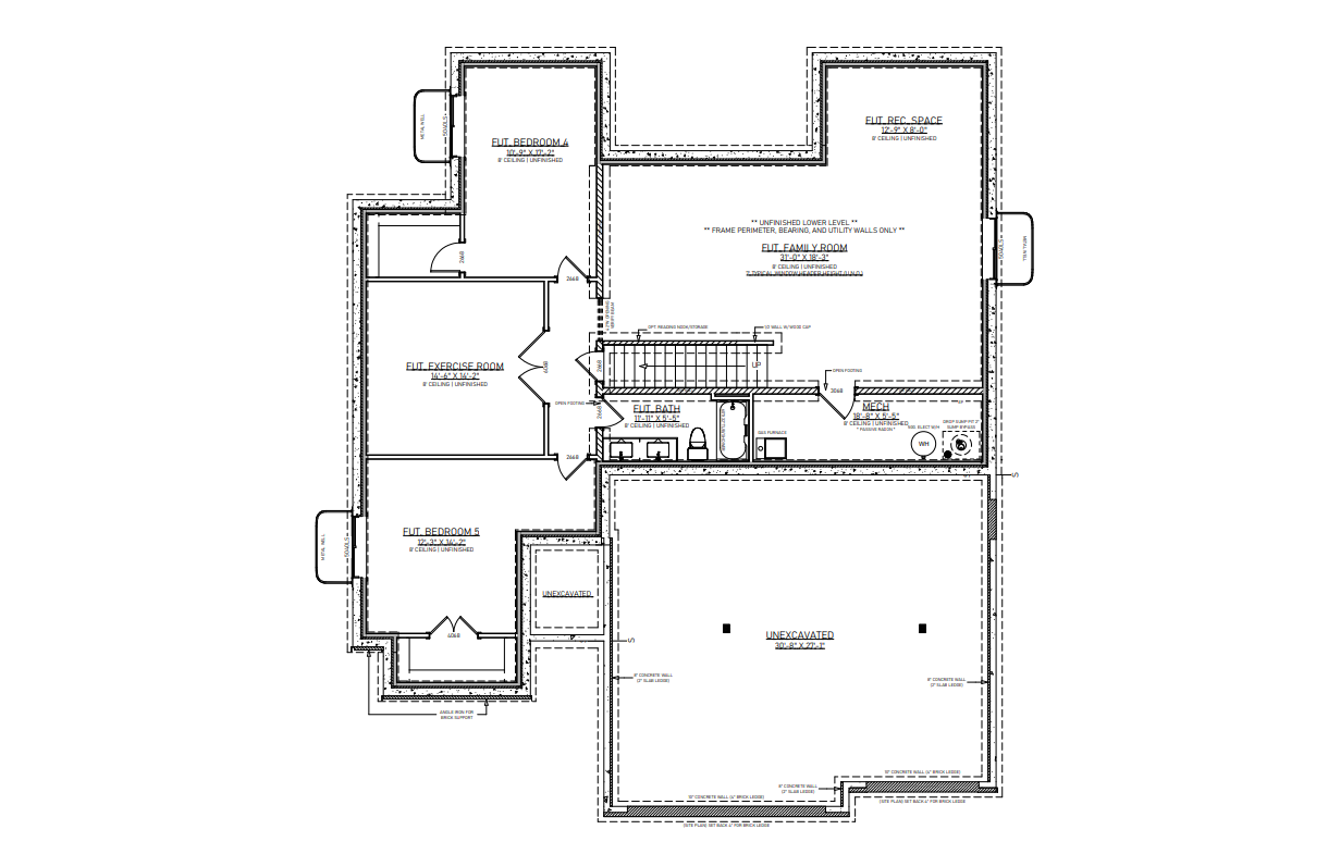
The Wellington is a beautifully designed rambler that blends everyday ease with smart, functional spaces. Offering 3 to 5 bedrooms and 2 to 3 bathrooms across 3,740 square feet, this home is tailored for modern living. The expansive great room features impressive 12-foot ceilings, a statement transom window, and an open layout filled with natural light. A covered patio extends off the dining area, perfect for seamless indoor-outdoor living. The streamlined kitchen boasts clean cabinetry and overlooks the main living area—creating the perfect backdrop for gathering and entertaining. One of the home’s most versatile features is the oversized walk-in pantry, which offers generous storage and the potential to double as a pocket office. Whether you need a quiet workspace or extra functionality, this multi-use space adapts to your needs. Tucked behind the great room, the primary suite is a serene escape with dual vanities and large walk-in closet. At the front of the home, two secondary bedrooms share a full bath—ideal for family or guests. Choose to finish the lower level to unlock even more living space, including a large family room, two additional bedrooms, a fitness room, and another full bath. With a 3-car garage, versatile layout options, and thoughtful details throughout, the Wellington blends comfort and design.
LET'S GET
Started!
Start your homebuilding journey!










