Ignite Collection
Lancaster Two Story
FEATURES
01
Double Volume Foyer
Our Double Volume Foyer concept exemplifies the pinnacle of luxury and design innovation.
02
Main Floor Flex Room
Unparalleled versatility, allowing homeowners to tailor their space to fit their lifestyle.
03
Large Primary Suite
Thoughtfully designed to maximize space and natural light, these luxurious suites incorporate stylish finishes.
04
Flexible Floorplan
Our flexible floorplans are designed to adapt to your family's unique lifestyle, ensuring both luxury and functionality.
Modify this Floorplan
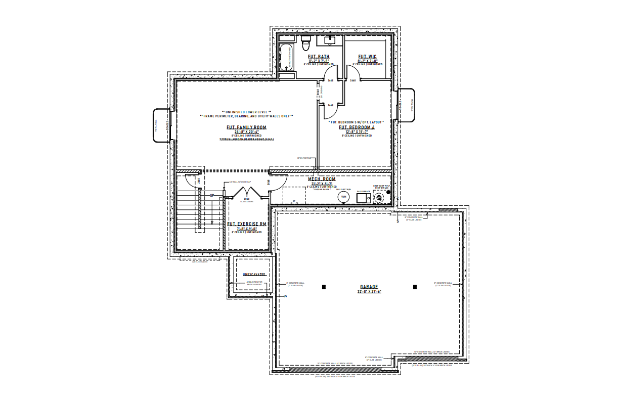
The Lancaster is a striking two-story design that blends everyday practicality with elevated style. A dramatic two story foyer sets the stage, opening into a flowing main level designed for everyday living and effortless entertaining. The kitchen is the heart of the home, featuring an oversized walk-in pantry and seamless sightlines into the dining and living areas. Just off the dining room, a flexible space offers endless potential—perfect for a home office, playroom, or even a formal dining room. Upstairs, the private primary suite includes a spacious walk-in closet, dual-sink vanity, and a separate water closet for added comfort. Two additional bedrooms, a full bath, and a centrally located laundry room round out the second floor. Need more sleeping space? The airy loft can easily be converted into a fourth bedroom. For even more living area, choose the optional finished basement with a cozy family room, additional bedroom, walk-in closet, and full bathroom. With flexible layouts, thoughtful details, and upscale finishes, the Lancaster offers a smart, stylish space for modern living.
LET'S GET
Started!
Start your homebuilding journey!











