Luxe Collection
Hudson Two Story
FEATURES
01
Vaulted Great Room
Vaulted great rooms are the epitome of luxurious living.
02
Large Family Foyer
We understand that a large family foyer is more than just an entrance; it’s an invitation to comfort and connection.
03
Double Volume Staircase
Our exquisite double volume staircases serve as stunning centerpieces, elevating the elegance of your home.
04
Private Owner’s Suite with Large Walk-in Closet
Inviting spaces that elevate your everyday lifestyle, ensuring every moment is as luxurious as it is comfortable.
Modify this Floorplan
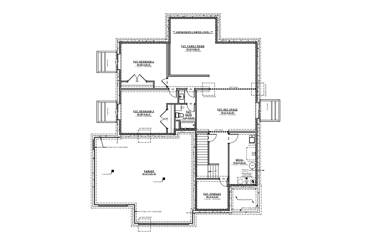
This exquisite 4-6 bedroom, 3.5-4.5 bathroom luxury 2-story residence spanning 5,258 square feet artfully blends grand spaces with family comfort. The dramatic 2-story foyer leads to the light-filled vaulted great room showcasing a stone fireplace and overlooking the chef’s kitchen and dining room. The private main floor owner’s suite features lavish bath and immense walk-in closet. Upstairs you’ll find 3-5 spacious bedrooms. The optional finished walkout basement adds recreation space. Other highlights include a 3-car garage, covered patio off the dining room, and countless customizations. With its timeless design and attention to detail, this home offers an unmatched combination of luxury living and livability. Photos are of previous models.
LET'S GET
Started!
Start your homebuilding journey!











